リビング重視派のお家
収納充実/家事楽&シェア
LDK超重視派のご家族へ
私たちリグスタイルカンパニーがご家族の暮らしに提案するのは、長く住んでも飽きのこないデザインと、本当に健康で快適な空間。デザインから性能に至るまで、生涯の暮らしやすさを突き詰めた住空間を、シミュレーションを繰り返して性能数値を見える化するパッシブデザインを用いて実現します。
CONCEPT – 設計コンセプト –

共働き世帯のための
”丁寧な暮らし”を
リアルに実現
コロナ禍を経て、様々な暮らしの変化が起きる中、今なお共働き世帯が増え続けています。
その中で、いま、ご家族に求められているものは、「ラグジュアリーでかっこいい暮らし」というよりは、身近なことを日々丁寧に暮らすことへの幸福感ではないでしょうか。
■ 家事ラク動線で、なるべく夫婦でシェアして、シンプルに効率よく
■ モノが増えがちな子育て期間中も、お部屋の中はスッキリと収納充実
■ 家族みんな一緒も、空間シェアでも楽しめる、心地いいLDK
当たり前のことを当たり前に続けていく毎日だからこそ、それを丁寧に暮らすためには、”家そのものへの工夫”も求められるはず。新しい時代が求める、家の「在り方」と「暮らし方」を、リグスタイルのフィルターを通して実現した新モデルハウスです。
ぜひ見て、聞いて、体感しに来てください!
GALLERY – ギャラリー –
ACCESS – アクセス –
モデルハウス所在地
岐阜県岐阜市茜部寺屋敷3丁目
※GOOGLEMAPはモデルハウス所在地を指しています。
スペック
- 敷地面積/184.67 ㎡(55.86坪)
- 延床面積/102.27㎡(30.94坪)
- 間取り/ 3LDK+WIC
- 1階床面積/52.79㎡(15.97坪)
- 2階床面積/49.48㎡(14.96坪)
- Ua 値 (外皮平均熱貫流率) : 0.44W/ ㎡ K
- C 値 (隙間相当面積) : 0.21㎠/㎡(建物完成後の測定結果)
- ηAC (冷房期日射熱取得率) : 0.8
- ηAH (暖房期日射熱取得率) : 2.1
- 耐震等級3認定取得
- 制震ダンパーevoltz採用
- 自然熱(地中熱)交換式 第三種換気システム採用
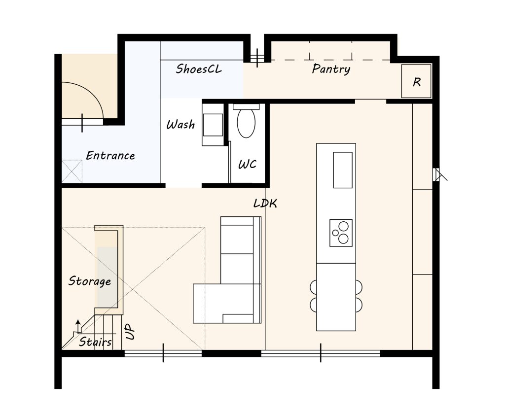
1F

2F

大開口から穏やかな光が差し込む開放感に満ちたLDKは、日々の疲れを癒してくれるようなシックで落ち着きある空間です。
高気密高断熱を凌駕する体感性能を創り出すパッシブデザインの設計で、年間の光熱費の削減はもとより、1年を通して健康で快適な室内環境を実現しています。
ENTRY – モデルハウス見学予約 –
モデルハウスの見学予約は、以下のフォームに必要事項をご入力のお申し込みください。
内容確認後、担当者から改めてご連絡を差し上げます。







